krsca

|

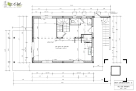
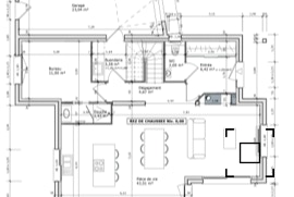
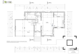
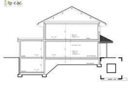
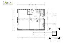
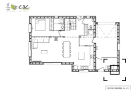
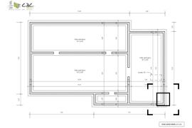
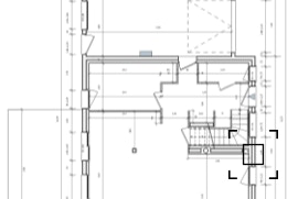
Les chantiers présentés ci-dessous sont représentatifs des domaines d'activités de la société C3C bâtiment et ne représentent qu'une partie des nombreux projets réalisés.




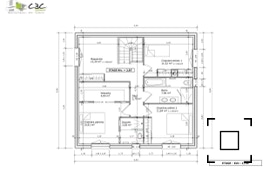
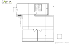
Conception et réalisation d’un permis de construire pour une villa individuelle sur la commune de Cordon (74700)




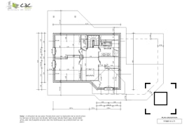
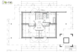
Conception et réalisation d’un permis de construire pour la rénovation et l’agrandissement d’une villa individuelle sur la commune de Copponex (74350)




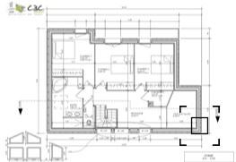
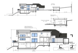
Conception et réalisation d'un permis de construire pour un chalet individuel sur la commune de La Chapelle d'Abondance (74360)



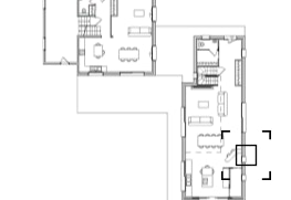
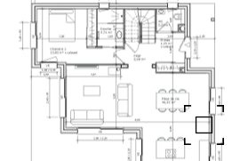
Conception des plans du projet, réalisation d’un permis de construire, consultation des entreprises, planification et organisation des travaux pour la construction d’une villa sur la commune de Cruseilles (74350).



Conception des plans du projet, réalisation d’un permis de construire, consultation des entreprises, planification et organisation des travaux pour la construction d’une villa jumelée sur la commune de Villy-le-Bouveret (74350).




Conception et réalisation d’un permis de construire pour une villa individuelle sur la commune de Villy-le-Bouveret (74350)



Conception des plans du projet, réalisation d’un permis de construire, consultation des entreprises, planification et organisation des travaux pour la construction d’une villa sur la commune de Vovray-en-Bornes (74350)




Conception et réalisation d’un permis de construire pour une villa individuelle en ossature bois sur la commune de Sâles (74150)




Conception et réalisation d’un permis de construire pour une villa individuelle sur la commune d’Andilly (74350)




Conception et réalisation d’un permis de construire pour une villa individuelle sur la commune de Cernex (74350)




Conception et réalisation d’un permis de construire pour une villa individuelle sur la commune de Vovray-en-Bornes (74350)

C3C Bâtiment

35 impasse des Cizes 74150 SÂLES

©   C3C Bâtiment - Tous droits réservés - Mentions Légales

Ce site web utilise les cookies. Veuillez consulter notre politique de confidentialité pour plus de détails.

OK